Home
|
Design Studio
|
Contact
Front Elevation
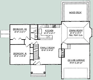
First Floor
Second Floor
<
Back