Front Elevation


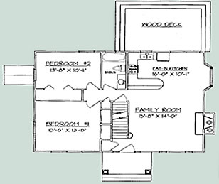
First Floor
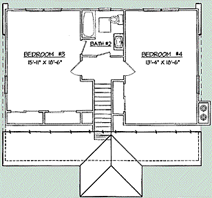
Second Floor

 

< Back